Grab- und Gedenkstätte für LSBTI* Verstorbene | Grave and Memorial Site for Deceased LGBTI People
Alter Stankt-Matthäus-Kirchhof Berlin, 2026
- In Zusammenarbeit mit / in cooperation with Christoph Wagner
- Fertigstellung Frühjahr 2026 / Inauguration Spring 2026
- Berlin bekommt einen neuen Ort der Erinnerung, der Trauer – und des Lebens:
Auf dem Alten St.-Matthäus-Kirchhof entsteht die erste Grab- und Gedenkstätte für LSBTI*-Menschen.
Die von der Schwulenberatung Berlin ausgelobte Kunst-im-öffentlichen-Raum wurde entschieden: Der Berliner Künstler Ulrich Vogl überzeugte die Jury mit einem sensiblen und poetischen Entwurf, der einen Raum für Sichtbarkeit, Würde und Begegnung schafft.
Mit der Grabstätte entsteht ein besonderer Ort, der die Geschichte und Gegenwart von LSBTI*-Menschen in Berlin sichtbar macht und einen würdevollen Rahmen für Erinnerung, Trauer und Leben bietet.
Die Bekanntgabe des Gewinnerentwurfs fand am 29. Oktober 2025 im Rathaus Berlin-Schöneberg statt. Die Realisierung des Entwurfs wird für Frühling 2026 erwartet.
- Berlin is gaining a new place of remembrance, mourning – and life:
At the Old St. Matthew’s Cemetery, the first grave and memorial site for LGBTI* people is being created.
The public art competition announced by Schwulenberatung Berlin has been decided: Berlin-based artist Ulrich Vogl convinced the jury with a sensitive and poetic design that creates a space for visibility, dignity, and encounter.
With this gravesite, a special place is being created that makes the history and presence of LGBTI* people in Berlin visible and provides a dignified setting for remembrance, mourning, and life.
The winning design was announced on 29 October 2025 at Schöneberg Town Hall. The realisation of the project is expected for Spring 2026.

Mit der neuen Grab- und Gedenkstätte entsteht ein einzigartiger Ort im Herzen der Stadt, der an LSBTI*-Menschen erinnert, deren Leben, Liebe und Identität über Generationen hinweg ausgegrenzt, verschwiegen oder vergessen wurden. Die Anlage soll sowohl Raum für individuelle Bestattungen bieten als auch für kollektives Erinnern und Gedenken.
With the new grave and memorial site, a unique place is emerging in the heart of the city – one that commemorates LGBTI* people whose lives, loves, and identities have been marginalized, silenced, or forgotten across generations. The site will offer space for both individual burials and collective remembrance.

BEZIRKSBÜRGERMEISTER JÖRN OLTMANN betonte die historische und gesellschaftliche Bedeutung des Projekts: „Tempelhof-Schöneberg ist ein Ort mit tiefer queerer Geschichte. Diese Gedenkstätte ist ein Zeichen der Verantwortung, die wir tragen, wenn es um Erinnerung geht. Sie macht sichtbar, was zu lange unsichtbar war – und verbindet Trauer mit Hoffnung.“
Auch MARCEL DE GROOT, GESCHÄFTSFÜHRER DER SCHWULENBERATUNG BERLIN, hob hervor, dass das Projekt weit über den Friedhof hinausweist: „Diese Grabstätte ist ein Symbol dafür, dass queeres Leben und Lieben Teil unserer gemeinsamen Geschichte ist. Sie gibt Menschen einen Platz, die in der Vergangenheit keinen hatten – und sendet zugleich ein starkes Signal in die Zukunft: dass Vielfalt und Würde untrennbar miteinander verbunden sind.“
Für die KIRCHHÖFE 6 KIRCHHOFSVERWALTUNG steht das Vorhaben für eine zeitgemäße, inklusive Erinnerungskultur. FELIX MILKEREIT erklärte: „Mit dieser Gedenkstätte schaffen wir einen Ort, der Vergangenheit und Gegenwart miteinander verbindet – einen Ort, der zeigt, dass Erinnerung lebendig sein kann.“
Der prämierte Entwurf von ULRICH VOGL überzeugte die Jury durch seine klare, zugleich poetische Sprache. In seiner Gestaltung verbinden sich Natur, Licht und Struktur zu einem Raum, der offen und einladend wirkt – ein Ort der Ruhe, aber auch der Begegnung. Vogl erläuterte seine Idee mit einfachen Worten: „Ich wollte einen Ort schaffen, der nicht ausschließt, sondern öffnet. Erinnerung ist nichts Starres – sie lebt, bewegt sich, verändert sich. Diese Gedenkstätte soll Menschen miteinander verbinden, über Grenzen hinweg.“
_
DISTRICT MAYOR JÖRN OLTMANN emphasized the historical and social significance of the project:
“Tempelhof-Schöneberg is a place with a deeply queer history. This memorial is a sign of the responsibility we bear when it comes to remembrance. It makes visible what has been invisible for too long – and connects grief with hope.”
MARCEL DE GROOT, MANAGING DIRECTOR OF SCHWULENBERATUNG BERLIN, also highlighted that the project reaches far beyond the cemetery itself: “This gravesite is a symbol that queer life and love are part of our shared history. It gives a place to those who had none in the past – and sends a powerful message for the future: that diversity and dignity are inseparable.”
For the CHURCHYARD ADMINISTRATION, the project represents a contemporary and inclusive culture of remembrance. FELIX MILKEREIT stated: “With this memorial, we are creating a place that connects past and present – a place that shows remembrance can be alive.”
The award-winning design by
ULRICH VOGL impressed the jury with its clear yet poetic language. In his concept, nature, light, and structure merge into a space that feels open and welcoming – a place of peace, but also of encounter.
Vogl explained his idea in simple words:“I wanted to create a place that doesn’t exclude but opens up. Remembrance is not static – it lives, moves, and changes. This memorial is meant to connect people across boundaries.”

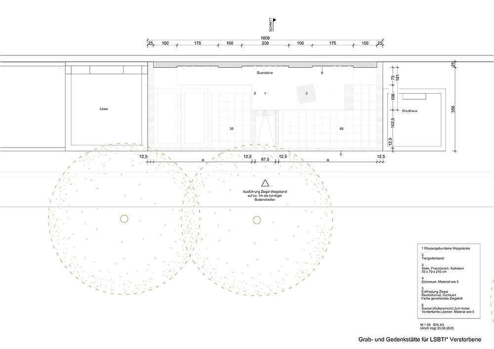
Der Entwurf für die neue Grab- und Gedenkstätte auf dem historischen Sankt-Matthäus-Kirchhof in Berlin verbindet zwei Elemente– eine Gedenkmauer und Kissing Stone – zu einem lebendigen Ort des Erinnerns und der Solidarität für LSBTI*-Verstorbene:
1. MAUER: Aus Ziegelsteinen im historischen Reichsformat in warmen Rot-, Gelb- und Grau/Schwarztönen gemauert, lehnt sie sich an die historischen Mauern des Friedhofs an. Breite Streifen in denen die einzelnen Chargen gesetzt sind lassen Assoziationen an einen Regenbogen aufkommen.
The design for the new grave and memorial site on the historic St. Matthew’s Cemetery in Berlin combines two elements – a memorial wall and a Kissing Stone – into a living place of remembrance and solidarity for deceased LGBTI* people:
1. WALL: Built of bricks in the historical Reichsformat, in warm red, yellow, and gray-black tones, the wall echoes the cemetery’s existing brickwork. Broad color bands evoke the idea of a rainbow.
Im „wilden Verband“ stechen einzelne Quersteine leicht vor; darüber sind jeweils im Abstand von ca. 15 cm eine Messing- oder Steinplatte (⌀10cm) angebracht, welche Namen und Lebensdaten der Verstorbenen tragen. Ein stetig wachsender, wandelbarer „Sternenhimmel“.
Auf jedem Vorsprung finden Blumen oder Kerzen Platz, und die lebendige Ziegeloberfläche lädt zum Berühren ein. Bei Sonnenschein oder bei Dunkelheit mit Kerzen funkeln die Platinen wie tanzende Sterne.
Individual crosswise-set bricks slightly protrude; above them, brass or stone plaques (⌀ 10 cm) bear the names and life dates of the deceased – forming a growing, ever-changing “sky of stars.”
Each ledge offers space for flowers or candles; the lively brick surface invites touch. In sunlight or candlelight, the plaques shimmer like dancing stars.


Detail Sockel / Detail base

Die Bank aus Ziegelsteinen hat eine Auflagefläche aus Holz.
Für die Wege wird eine gelbliche wassergebundene Wegedecke vorgeschlagen. Ein schmales Metallband dient als Abgrenzung zur Wiese.
Rahmung: Eine umlaufende Plattform lädt dazu ein, Blumen, Kerzen oder Fotos abzulegen und macht den Stein zum Zentrum gemeinsamer Rituale.
The bench made of bricks has a wooden seating surface.
Paths are planned with a yellowish bound gravel surface, though other materials are possible. A slim metal band separates the paths from the lawn.
Setting: A surrounding platform invites visitors to place flowers, candles, or photos, making the stone the focal point of shared rituals.


Ansicht von der Monumentenstrasse aus / View as seem from Monumentenstrasse.

2. KISSING STONE: Material & Maße: Ein monolithischer Block aus französischem Kalkstein mit zarter, rosa Aderung (70 × 70 × 210 cm, ca. 2,5 t), dessen vier Seiten von Hand unterschiedlich geschliffen sind.
2. KISSING STONE: Material & Dimensions: A monolithic block of French limestone with delicate pink veining (70 × 70 × 210 cm, approx. 2.5 t), its four sides hand-polished in varying textures.

Bezug zur Geschichte: Ganz bewusst greift der Stein das Ritual am Grab von Oscar Wilde und Simone de Beauvoir in Paris auf, wo seit Jahrzehnten Küsse als Zeichen der Verbundenheit gesammelt werden.
Historical Reference: The stone deliberately draws on the ritual at the graves of Oscar Wilde and Simone de Beauvoir in Paris, where kisses have long been left as signs of connection.

Interaktivität: Besucher:innen hinterlassen mit Lippenstift Küsse, die direkt in die offene Oberfläche eindringen und als Farbabdruck haften bleiben. Regen wäscht sie nicht ab, nur der sommerliche Sonnenschein lässt das Rotpigment allmählich verblassen – und schafft Raum für neue Zeichen der Zuneigung.
Interactivity: Visitors leave lipstick kisses that penetrate the open surface and remain as colored imprints. Rain does not wash them away; only summer sunlight gradually fades the pigment – making room for new expressions of affection.


Rituale: Zu jährlichen Gedenkveranstaltungen bieten sich folgende Rituale an: Kerzen und Blumen an den Mauerquersteinen, Anbringung neuer Plaketten, gemeinsames Küssen des Steins, Entzünden von Kerzen vor den Plaketten.
Mit diesem Entwurf entsteht ein Ort, der das individuelle Leben ehrt, kollektives Gedenken ermöglicht und durch die aktive Beteiligung jeder:m Besuchenden sein Gesicht und seine Geschichte fortwährend erneuert.
Rituals: For the inauguration and annual commemorations, suggested rituals include: placing candles and flowers on the wall ledges, adding new plaques, collectively kissing the stone, and lighting candles in front of the plaques.
With this design, a place emerges that honors individual lives, enables collective remembrance, and continually renews its form and story through the active participation of every visitor.

All elements are made of natural materials: French limestone, gravel, sand, and fired brick. A solid foundation ensures stability for the 2.5-ton stone; the wall follows the site’s proportions. The path layout is accessible and walker-friendly.
Alle Elemente bestehen aus natürlichen Materialien: französischer Kalkstein, Schotter und Sand, und gebrannter Ziegel. Ein solides Fundament sorgt für Standfestigkeit des 2,5-t-Steins; die Mauer folgt durchgehend den Proportionen der Anlage. Die Wegeführung ist Rollator-freundlich.